Trazo de plumón superalto;
Permanece fuera de la vista y fuera de camino cuando no está en uso;
No obstruye la vista, el acceso y la salida de emergencia cuando está guardada;
Sonido de advertencia durante el trabajo;
Función de copia de seguridad manual para emergencia;
Función de enclavamiento de puerta;
Dispositivo de bloqueo de seguridad interior;
Paradas de rollo automáticas mecánicas;
Plataforma antideslizante;
Bomba hidráulica potente asegura un movimiento suave y estable;
Pasamanos laterales para aumentar la comodidad y la seguridad.

Especificaciones técnicas:
| Volatge | 24Vdc |
| Potencia | 500W |
| Capacidad de carga | 350kg |
| Nivel de protección | Lp56 |
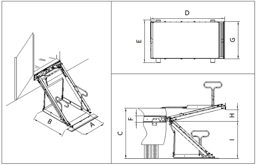
Parámetros (Unidad: mm)
| Modelo | Anchura de la plataforma A | Longitud plataforma B | Altura del piso del vehículo C | Longitud bruta D | Ancho bruto E | Espesor F | Anchura de puerta neta G | Carrera hacia arriba H | Carrera abajo I |
| UVL-1650MAX | 800 | 1225 | ≤ 1650 | 2350 | 1345 | 210 | ≥ 1200 | 150-400 | 200-1250 |